当前时间:
 
 
 
地址:江苏泰州市姜堰经济开发区
联系人:许经理
手机:15861028198
电话:0523-82578918
传真:0523-82073188
网址:www.tzbrbwg.com
邮箱:tzbrbwg@163.com

 

 
产品展示
您当前所在的位置:首页 >> 产品展示

    补偿器,膨胀节系列 >> 复式拉杆轴向型补偿器
 

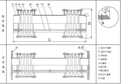
复式拉杆轴向型补偿器由两段波纹管、中间接管及长拉杆等部件构成,他只能吸收轴向位移。长拉杆不是承力构件。
产品特点:
膨胀节由两段波纹管,短中间接管及长拉杆等零件构成,它只吸收轴向位移量。它的长拉杆不是承力构件。
四、装使用注意事项:
a)装有内衬筒时,其方向应与介质流向一致(膨胀节上有流向标志。
b)现场安装完毕后,须将环板两侧的螺母退至限位螺母处。
产品结构简图

 

点击数:1609  录入时间:2012-11-23 【打印此页】 【关闭

 

泰州博瑞波纹管有限公司 地址:江苏泰州市姜堰经济开发区 电话:0523-82578918 传真:0523-82073188
联系人:许经理、15861028198 邮箱:tzbrbwg@163.com 网址:www.tzbrbwg.com 友情链接:易普网络
广告词说明:本网站介绍上显示的广告法规定集线(错别字是为避免广告法排查工具误导)词,只在本网站范围内对比,且仅作为产品内容介绍使用,非广告宣传用语!
*本站相关网页素材及相关资源部分来源互联网,如有侵权请速告知,我们将在24小时内删除* 【免责声明】
备案号:苏ICP备13019346号